dal 1979 - SVI - società vendite immobiliari

appartamento

Faenza (RA)
260.000 Euro
codice r63506
camere 2
bagni 1
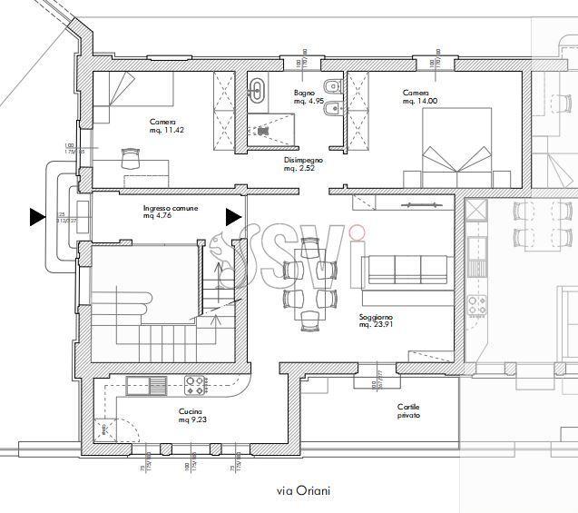
Presentiamo in esclusiva la vendita di appartamenti di altissimo livello nati dalla completa e sapiente ristrutturazione di un magnifico Palazzo nel centro storico di Faenza. La posizione è strategica: nel cuore pulsante della città, garantisce la comodità di tutti i servizi e la vicinanza alla Stazione Ferroviaria, rendendo l'immobile ideale anche per pendolari o professionisti. La ristrutturazione è stata curata nei minimi dettagli, con l'obiettivo di preservare l'autenticità e il fascino storico, integrandoli con le più avanzate tecnologie abitative. Il progetto prevede la realizzazione di sole sei unità abitative di ampia metratura, tutte con possibile posto auto di proprietà, garantendo massima privacy e tranquillità. Comfort Moderno: Impiantistica di ultima generazione, riscaldamento a pavimento, isolamento termoacustico. Tutti gli appartamenti sono stati concepiti per offrire spazi generosi e funzionali, con un taglio che prevede almeno due camere da letto, perfetto per famiglie o per chi cerca un ampio studio. Capitolato di alto standing con serramenti a basso emissivo, possibilità di personalizzazione degli interni. Acquistare qui significa investire in un immobile che manterrà il suo valore nel tempo grazie alla sua irripetibile combinazione di storia, posizione e qualità costruttiva.
tipologia offerta: appartamento
Prestazione Energetica: 60,00 kh/m²

piano / piani: terra / 0
superficie: 86 mq

Giardino: Condominiale
Privacy Policy - Cookie Policy
By Dinamo Digitale Dati provenienti da Gestionale Cometa